Aqua Self Cleaning Big OneAqua Self Cleaning Big One

Aqua Self Cleaning Big One


   

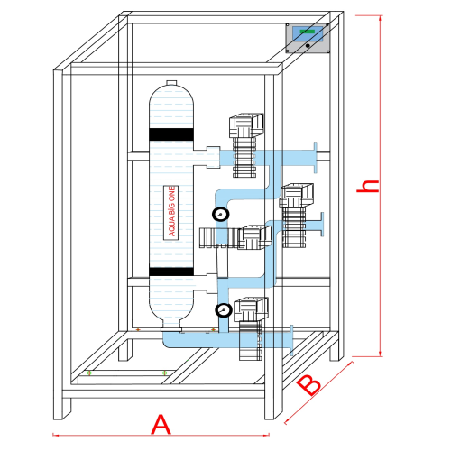
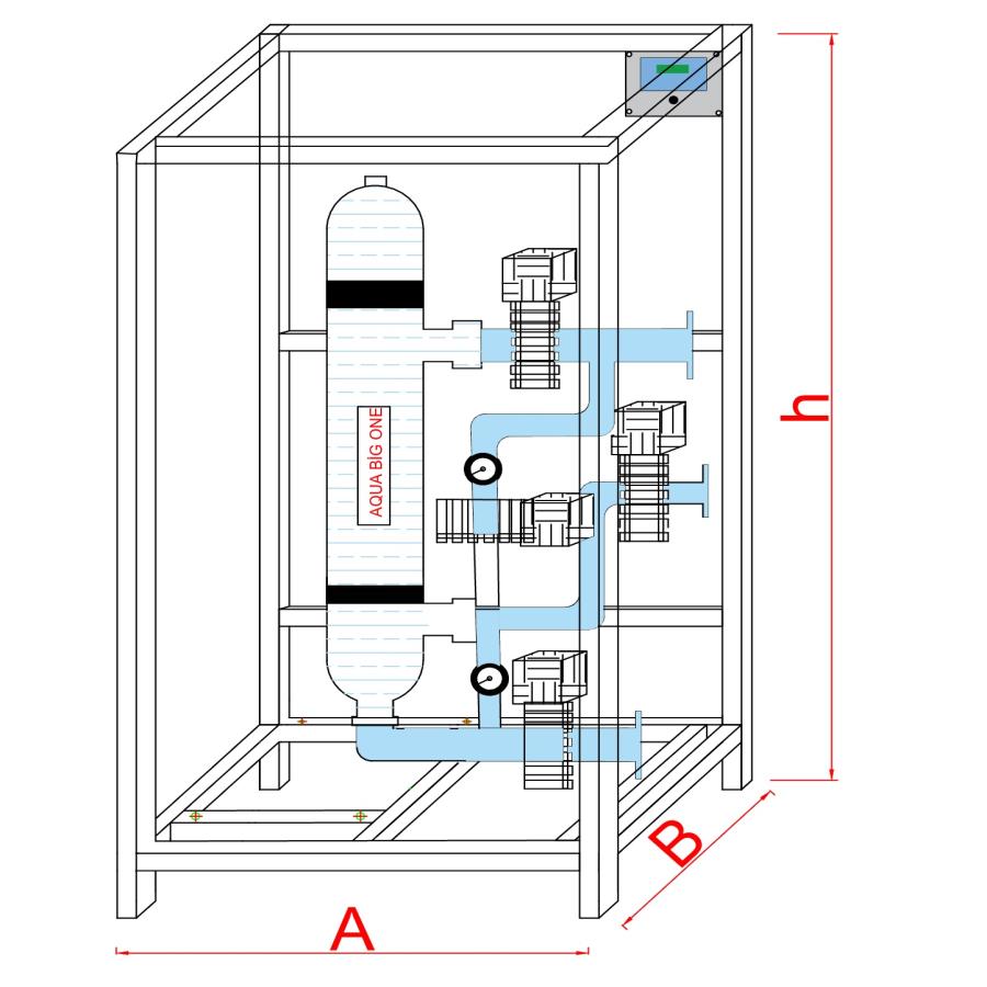
AQUA SELF CLEANING BIG ONE

 
CODE Modell BESCHREIBUNG
A1150050A 23"  Self Cleaning Big One
A1150060A 40"  Self Cleaning Big One
  • Dank des automatischen Kontrollsystems wird der FiLer rund um die Uhr, 7 Tage die Woche, zu den gewünschten Zeiten und Mengen rückgespüL, ohne dass ein Eingeifen des Benutzers erforderlich ist.
  • Einfache Installation.
  • Einzelner FiLer für schnelle und einfache Montage.
  • Korrosions- und verschleißbeständig, bruchsicher.
  • Korrosionsbeständige AISI 314 Edelstahl-Schelle.
  • Sicherheitsventil 10 Bar.
  • Sicherheitsventil 10 Bar..
  • Elektrische Aktuatorventile.
  • Big One Housing mit waschbarem FiLer und Automatisierung als Komplettpaket.
  • Geeignet für Salzwasser.
   
 


ZUBEHÖR UND ERSATZTEILE

 
CODE ModellL MIKRON
A4038010 23"  80 MIKRON
A4038030 40"  80 MIKRON
  • Ersatz-Innenfilter für Aqua Self Cleaning Big One.
  • Die Durchflussraten gelten bei sauberem Filter.


Kategorie: Filtrationssysteme
Tag:
  • Länge 23'' 40''
    Gehäuse PP PP
    Einlass - Auslass 3'' Flansch 3'' Flansch
    Durchfluss 30 m³/h 45 m³/h
    Betriebsdruck  7 bar max 7 bar max
    Berstdruck  20 bar max 20 bar max
    Betriebstemperatur  5°C + 40 °C min / max 5°C + 40 °C
    FiLer RLA 80 mikron RLA 80 mikron
    FiLerdurchfluss 30000 L/h 45000 L/h
    Abmessungen  A : 100 cm   B : 50 cm   h : 175 cm